Załączniki
| Prognoza_oddziaływania_na_środowisko_zmiany_mpzp_miasta_Wąbrzeźno_dla_obszaru_położonego_przy_ul_Przejazdowej (Rozmiar: 2 MB, PDF) | dodany: 12:08, 25.08.2022 | przez: Łukasz Cieślak | |
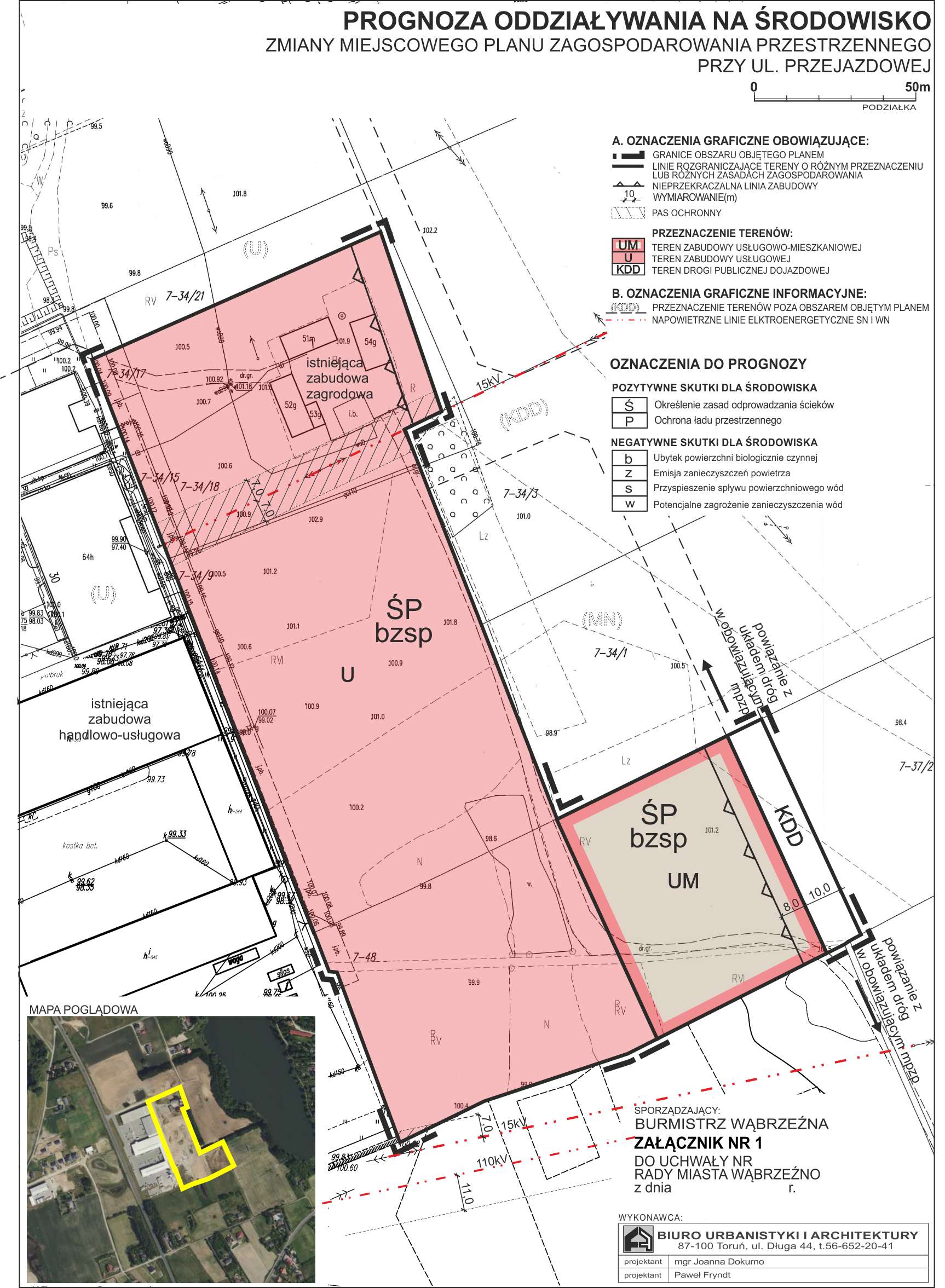
| Zał_do_prognozy_oddziaływania_na_środowisko_zmiany_mpzp_miasta_Wąbrzeźna_dla_obszaru_położonego_przy_ul_Przejazdowej (Rozmiar: 453 kB, JPG) | dodany: 12:08, 25.08.2022 | przez: Łukasz Cieślak |
Informacje
| wytworzono: | data: - 01.02.2022 | przez: Biuro Urbanistyki i Architektury | |
| wprowadzono: | data: 12:08, 25.08.2022 | przez: Łukasz Cieślak | |
| udostępniono: | data: 12:08, 25.08.2022 | przez: Łukasz Cieślak | |
| zmodyfikowano: | data: 12:08, 25.08.2022 | przez: Łukasz Cieślak | |
| osoba odpowiedzialna: | Grzegorz Dedeński | ||
| podmiot udostępniający: | Urząd Miasta Wąbrzeźno | ||
Rejestr zmian
| utworzono: | data: 12:08, 25.08.2022 | przez: Łukasz Cieślak | Prognoza oddziaływania na środowisko zmiany miejscowego zagospodarowania przestrzennego miasta Wąbrzeźna dla obszaru położonego przy ul. Przejazdowej |
